



Pressure device is a device with function as sight through which push force of tip on belt is visibly indicated.
<Design no.0371618, Patent no. 10-0563448>
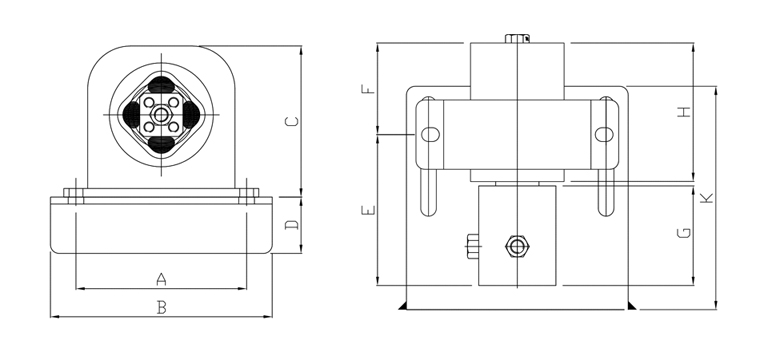
| DIMENSION LIST (H-type) | |||||||||||
|---|---|---|---|---|---|---|---|---|---|---|---|
| H Rubber Tensioner |
Belt width | A | B | C | D | E | F | G | H | J | K |
| 3LH-120 | ~800 | 189 | 225 | 174 | 58 | 164 | 64 | 110 | 80 | 74 | 226 |
| 3LH-140 | 800~1050 | 189 | 225 | 174 | 58 | 164 | 84 | 110 | 80 | 74 | 226 |
| 5LH-130 | 1050~1200 | 207 | 256 | 174 | 65 | 167 | 74 | 110 | 80 | 80 | 226 |
| 5LH-160 | 1400~1600 | 207 | 256 | 174 | 65 | 167 | 104 | 110 | 80 | 80 | 226 |
| 5LH-220 | 1800~2200 | 207 | 256 | 174 | 65 | 167 | 164 | 110 | 80 | 80 | 226 |
| DIMENSION LIST (H-type) | |||||||||||
|---|---|---|---|---|---|---|---|---|---|---|---|
| P Rubber Tensioner |
Belt width | A | B | C | D | E | F | G | H | J | |
| 3LP-120 | ~800 | 187 | 205 | 156 | 136 | 58 | 225 | 117 | 143 | 226 | |
| 3LP-140 | 800~1050 | 187 | 205 | 156 | 136 | 58 | 225 | 117 | 143 | 226 | |
| 5LP-130 | 1050~1200 | 213 | 223 | 174 | 143 | 65 | 256 | 122 | 150 | 236 | |
| 5LP-160 | 1400~1600 | 213 | 223 | 174 | 143 | 65 | 256 | 122 | 150 | 236 | |
| 5LP-220 | 1800~2200 | 213 | 223 | 174 | 143 | 65 | 256 | 122 | 150 | 236 | |